Plot & Plan
Option H-1
- STARTING AT R3,995,000
- HOUSE SIZE: 177.73sqm
Plan Option H-1
Plot & Plan
- STARTING AT R3,995,000
- HOUSE SIZE: 177.73sqm
HOUSE TYPE H-1
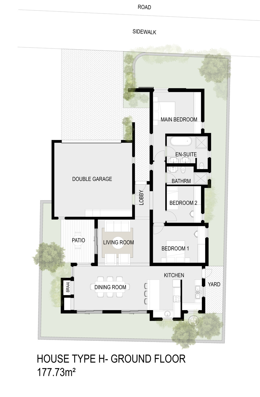
Single-Storey Living
Total Area: 177.73 m²
House Type H offers modern single-floor comfort, ideal for families seeking both space and style.
Key Features:
- 3 Bedrooms, with the Main Bedroom offering a full En-Suite and private access.
- Shared Bathroom, and spacious open Living Room and Dining Area.
- Large Kitchen, private Yard, indoor Braai, and outdoor Patio.
- Double Garage with easy indoor access via the Lobby.
3 Bedrooms
2 Bathrooms
Dining Room
Living Room
Braai Room
Patio
Kitchen
Study
Double Garage
3 Beds
2 Baths
Dining Room
Living Room
Braai Room
Patio
Kitchen
Study
Double Garage
Plan Layout
Ground Floor - Single Level Home