Plot & Plan
Option E-1
- STARTING AT R4,525,000
- HOUSE SIZE: 188.23sqm
Plan Option E-1
Plot & Plan
- STARTING AT R4,525,000
- HOUSE SIZE: 188.23sqm
HOUSE TYPE E
Multi-Level Family Home
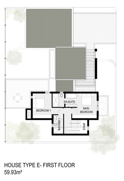
Total Area: 188.23 m² (Ground Floor: 128.30 m² | First Floor: 59.93 m²)
This split-level home offers space and privacy for family living.
Ground Floor Features:
- Light-filled Living Room, open Dining Area, and Kitchen with multiple Patios.
- Built-in Braai Area, Study, and guest WC.
- Secure Double Garage and Service Yard.
First Floor Features:
- 2 Bedrooms including a luxurious Main Bedroom with En-Suite.
- Shared Bathroom and Stair Hall.
2 Bedrooms
2.5 Bathrooms
Dining Room
Living Room
Braai Room
Patio
Kitchen
Study
Double Garage
2 Beds
2.5 Baths
Dining Room
Living Room
Braai Room
Patio
Kitchen
Study
Double Garage
Plan Layout
Ground Floor
First Floor
First Floor