Plot & Plan
Option A-2
- STARTING AT R3,325,000
- HOUSE SIZE: 136sqm
Plan Option A-2
Plot & Plan
- STARTING AT R3,325,000
- HOUSE SIZE: 136sqm
House Type A-2
Total Area: 136m²
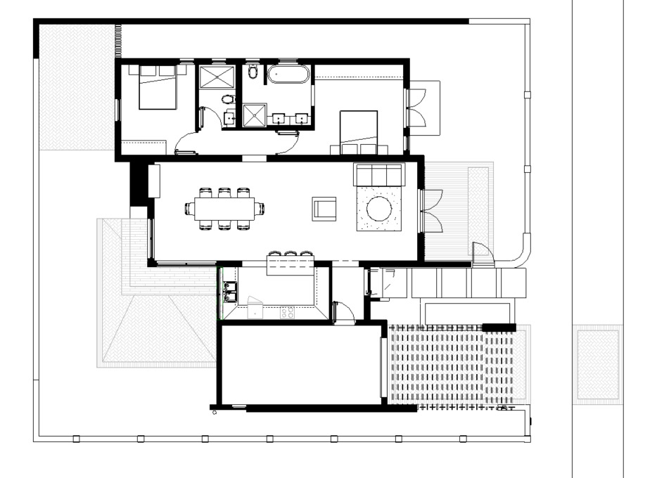
HOUSE TYPE A2 – Ground Floor Overview
Total Area: 136 m²
Welcome to House Type A2 – a modern and efficient single-level home designed for comfortable living. With a well-planned layout spanning 136 square meters, this home balances functionality with contemporary design.
Interior Features:
2 Bedrooms, including a spacious Main Bedroom with an En-Suite Bathroom, plus an additional bedroom with access to a second full bathroom.
Open-Plan Living and Dining Area, creating a seamless flow between spaces.
A modern Kitchen with ample storage and easy access to the Dining Area.
Entertainment & Outdoor Living:
The Living Room opens onto a covered Patio, perfect for relaxed outdoor living.
Functional and stylish layout enhances the indoor-outdoor connection.
Additional Features:
A Single Garage with direct access into the home for convenience.
A well-planned layout ensuring privacy and practicality.
House Type A2 offers a refined yet practical living experience, making it an excellent choice for professionals, couples, or small families seeking a modern home.
2 Bedrooms
2 Bathrooms
Dining Room
Living Room
Braai Room
Patio
Kitchen
Study
Single Garage
2 Beds
2 Baths
Dining Room
Living Room
Braai Room
Patio
Kitchen
Study
Single Garage
Plan Layout
Ground Floor - Single Level Home